Barn Record Guilford

RETURN TO ‘FIND BARNS’
Building Name (Common)
Henry Whitfield State Museum Visitor Center
Building Name (Historic)
Henry Whitfield Homestead
Address
248 Old Whitfield Street, Guilford
Typology
Overview

Designations

Historic Significance

Architectural description:

This converted barn now takes the form of a five-bay, 2 ½-story Georgian Colonial house. The main facade faces southwest and the ridge-line runs northwest-southeast. The main entrance is a pass-through door with a simple door-case with a six-light transom centered on the southeast eave-side. Above the door on the second story is an eight-over-twelve double-hung window. The flanking bays each have an eight-over-twelve double-hung window on both the first and second stories. The northwest gable-end has an eight-over-twelve double hung window on the south half of the first story. Just north of the window are wooden stairs that lead up to the second story to a pass-through door that is located on the north half. South of the pass-through door is an eight-over-twelve double-hung window. An eight-over-twelve double-hung window is located in the gable attic. The northeast eave-side has an exposed brick basement level, as the grade is lower on that side of the building. A pass-through door is located on the south half of the basement level. South of the entrance is a six-over-six double-hung window, and north of the door are two six-over-six double-hung windows. All three of these windows have brick lintels with a very slight arch. Centered on the first story are two small six-over-six double-hung windows. Pairs of twelve-over-twelve double-hung windows flank the six-over-six double-windows. The second story has five eight-over-twelve double-hung windows. The southeast gable-end has a pass-through door with a classical door-case centered on the first story. Twelve-over-twelve double-hung windows flank the door. An eight-over-twelve double-hung window is located on the south half of the second story and a small four-pane window on the north half. A six-over-nine double-hung window is located in the gable attic. The building is covered with wood shingles. The roof has a very slight projecting overhang on the eave-sides and is covered with wood shingles. Two interior brick chimneys are located equally spaced in from the gable-ends. The foundation is brick.


Historical significance:

The oldest barns still found in the state are called the “English Barn,” “side-entry barn,” “eave entry,” or a 30 x 40. They are simple buildings with rectangular plan, pitched gable roof, and a door or doors located on one or both of the eave sides of the building based on the grain warehouses of the English colonists’ homeland. The name “30 by 40” originates from its size (in feet), which was large enough for 1 family and could service about 100 acres. The multi-purpose use of the English barn is reflected by the building’s construction in three distinct bays - one for each use. The middle bay was used for threshing, which is separating the seed from the stalk in wheat and oat by beating the stalks with a flail. The flanking bays would be for animals and hay storage.


Historical background:

“…Whitfield emigrated in 1639, leading a group of settlers, which may have included as many as 40 men and their families…Soon after landing at New Haven, the settlers moved on to found a plantation at Guilford where land was purchased from the sachem of the Menuncatuck tribe, a woman named Shaumpishuh. It is said that construction started on his house in 1639 before winter set in and it was completed the following spring…the Henry Whitfield State Historical Museum is known throughout New England for its highly significant seminal role in the intertwined historic preservation and Colonial Revival movements.” (National Historic Landmark nomination)

Field Notes

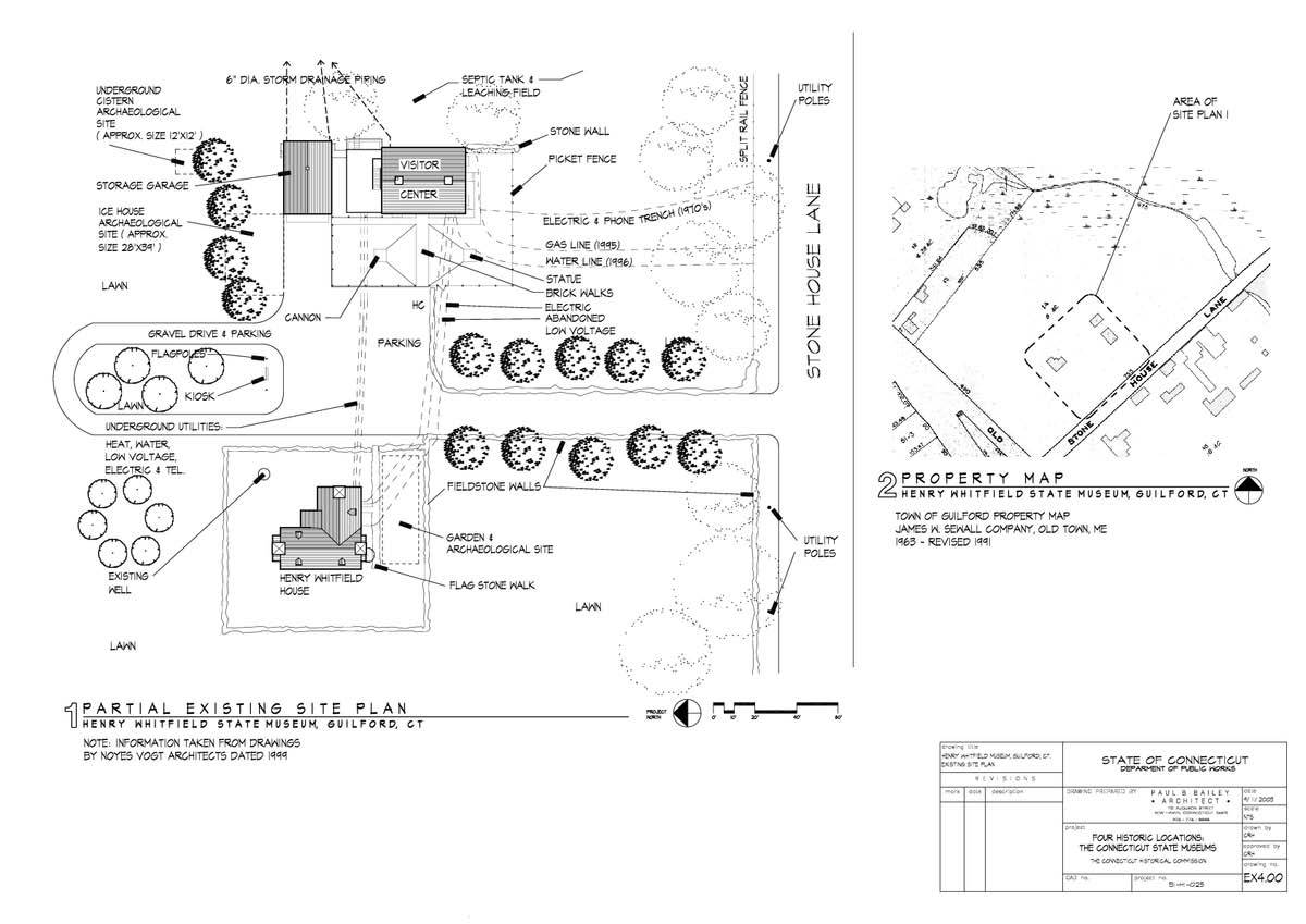
Structures on the site include the Henry Whitfield House, the Visitor Center, and a small barn used for storage. The Visitor Center is a post and beam wood framed structure built as a barn in the 1870s. The structure was altered into a caretaker’s dwelling in 1923. It now functions as the Visitor Center. The Henry Whitfield House is listed on the National Register of Historic Places as a National Historic Landmark. Use (Historic): Horse barn (c.1870s-1899); Museum caretaker's residence, offices, and collections storage (1923-1990) Use (Present): Visitor Center with gift shop, exhibit galleries, travel information center, research library, offices, and collections storage Site plan shows the Visitor's Center building which was built as a barn in the 19th c.

Use & Accessibility

Use (Historic)

Use (Present)


Exterior Visible from Public Road?

Yes

Demolished

n/a

Location Integrity

Original Site

Environment

Related features

Environment features

Relationship to surroundings

The barn (current Visitor’s Center) is located slightly northeast of and behind the c. 1639 house it is associated with. The ridge-line of the house runs parallel to that of the barn. A smaller barn (current garage) is located just north of the main barn, with a ridge-line running perpendicular to that of the main barn. Northwest of the barns are two small sheds or outbuildings. Stone walls encircle the historic house on all but its east side, and stone walls border the whole property along Old Whitfield Street and Stone House Lane. The total size of the property is 9 acres. The surrounding area is open land, residential, and woodland.

Parcel ID: 033014.

Typology & Materials

Building Typology

Materials


Structural System

Roof materials


Roof type


Approximate Dimensions

Approximately 1680 sq. ft.

Source

Date Compiled

03/17/2011

Compiled By

B. Bjorklund & T. Levine, reviewed by CT Trust

Sources

Field notes and photographs by Charlotte Hitchcock, 04/03/2007.

Town of Guilford Assessor’s Record or GIS Viewer:
http://www.guilfordgis.com/detail.asp?parid=033014
http://www.prophecyone.us/index_prophecy.php?town=Guilford
Parcel ID: 033014

Aerial Mapping:
http://maps.google.com accessed 03/17/2011
http://www.bing.com/maps accessed 03/12/2011

Cunningham, Jane, Cunningham Associates Ltd., National Historic Landkmark Item No. 97001277, National Park Service, 1995.

Raiche, Stephen J., Guilford Historic Town Center National Register Historic District Nomination No. 76001988, National Park Service, 1976.

National Register of Historic Places No. 72001327, National Park Service, 1972.

Photos were taken in 2003 as part of a study performed by Paul B. Bailey Architect for the then CT Historical Commission.

Fitch, James Marston, Historic Preservation: Curatorial Management of the Built World, McGraw Hill, New York, 1982, 433 pages, p.44. 

Sexton, James, PhD, Survey Narrative of the Connecticut Barn, Connecticut Trust for Historic Preservation, Hamden, CT, 2005, http://www.connecticutbarns.org/history.

Visser, Thomas D., Field Guide to New England Barns and Farm Buildings, University Press of New England, 1997, 148.

 

PhotosClick on image to view full file