
Architectural description
This is a 1 1/2- story three-bay barn with a shed-roof addition encompassing the entire length of its west gable-end. The barn has entries from both the eave-side and the gable-end. The ridge line of the main barn runs east-west, almost perpendicular to this portion of Wheeler Road. The east gable-end of the barn facing the road is the present main façade with the main entrance at the center through an over-head garage door with the upper corners chamfered at an angle of forty-five degree. A continuous horizontal trim can be seen above the main entrance while the gable attic is separated from the rest of the gable-façade by distinct dropped girt siding divide line. The gable attic is lined by deep soffit and has a four-partite ocular window just below the apex of the roof. The three-bay south eave-side of the barn appears to be the original main façade with the original main entrance centered in the middle bay through a double-height wagon door entrance which is longer operational. A twelve-pane window is centered in the first bay from the west while the first bay from the east appears to have a secured window at the center. The south side-wall of the shed-roof addition on the west gable-end of the barn is flush with the south eave-side and has a hinged pass-through door towards the east with the door leaf no longer in place. The south eave-side of the barn and the south side-wall of the shed-roof addition have missing siding. The west gable-end of the barn with the shed-roof addition has a distinct dropped girt siding divide line separating the gable attic which has a four-partite ocular window at the center. The gable attic is lined by deep soffit and has missing siding below the window. The north side-wall of the shed-roof addition flush with the north eave-side of the main barn has a hinged pass-through door towards the east with a six-over-six double-hung sash window towards its immediate west. The north side-wall of the shed-roof addition has exposed cement plastered masonry foundation towards the west. The three-bay north eave-side of the barn has an entrance in the middle bay towards the west through a hinged pass-through door with a trim above it. The first bay from the east appears to have a closed window at the center while two closely spaced windows can be seen above the pass-through door, off-centered towards the east.
The wooden frame of the barn appears to be supported by field stone masonry and cement plastered masonry foundation. The barn and the shed-roof addition have asphalt shingle roofing and red painted vertical siding.
Historical significance:
The oldest barns still found in the state are called the “English Barn,” “side-entry barn,” “eave entry,” or a 30 x 40. They are simple buildings with rectangular plan, pitched gable roof, and a door or doors located on one or both of the “eave” sides of the building based on the grain warehouses of the English colonists’ homeland. The New England barn or gable front barn was the successor to the English barn and relies on a gable entry rather than an entry under the eaves. The gable front offers many practical advantages. Roofs drain off the side, rather than flooding the dooryard. Although it was seen by many as an improvement over the earlier side entry English Barn, the New England barn did not replace its predecessor but rather coexisted with it. It this case, both an eave entry and a gable entry are used.
Circe 1765 English style pegged post & beam barn. Side doors have been covered over and a lift garage door was installed into the East gable end. A shed was attached to the rear in a later year. The barn has vertical siding and asphalt roof shingles. It is located in the Monroe Historic District. Contributing resource in the Monroe Center Historic District: 299 Wheeler Road; Robert Lewis Home; Residence; 18th Century Saltbox; pre- 1775; Importance to the district- Great. Also located in the Monroe Center Local Historic District.
Yes
n/a
Unknown
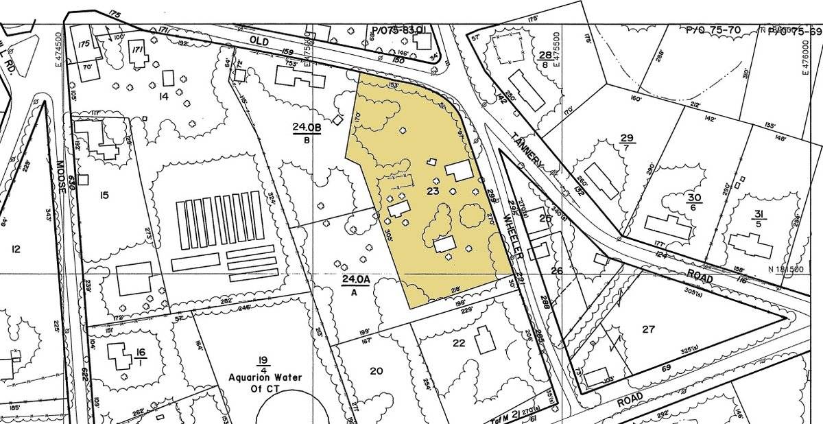
The 2.21 acres property, Account number – 06302300 and Map-Block-Lot number - 063 023 00, is a corner plot towards the west of Wheeler Road and the south of Old Tannery Road. The property is contributing to Monroe Center Historic District and is located towards the southeast of Monroe Town green. It is located in a pre-dominantly residential area with individual plots separated by woodland. It is flanked by residential plots towards the west, south, east and the north, across the roads in respective direction.
The barn is located towards the southern edge of the property with its ridge line running east-west, almost perpendicular to this portion of Wheeler Road. The pre- 1775 saltbox style main residence is located towards the northeast of the barn, abutting to the road. A gable-roof outbuilding with its ridge line running north-south is located towards the northwest of the barn. The property has a garden surrounding the main residence while woodland can be seen towards the edges.
[Monroe Center Historic District is located in the highest section of the Town of Monroe. The topography is rugged and winding roads following natural contours radiating from the central green- The district is centered about the Monroe Center Green, a triangular open space.
The Monroe Center Historic District is important in urban history since it retains its 18th century New England town plan consisting of a central green and radiating irregularly laid out streets following the natural contours. Architecturally the district is significant since it has well-preserved vernacular buildings dating from about 1750 to the present. It has several Federal period buildings of architectural distinction. The district has the ambiance of an undisturbed, pre-Civil War New England village.][NR]
Barn: 32 X 24 Sqft, Circa 1900;
04/20/2011
T. Levine and M. Patnaik, reviewed by CT Trust
Field notes and photographs provided by: Lee Hossler, 04/04/2011.
Assessors’ records retrieved on April 20th, 2011 from website http://monroe.univers-clt.com/ .
Assessors’ maps retrieved on April 20th, 2011 from website http://www.monroect.org/ .
Brown T. Robins, Monroe Center Historic District, National Register Nomination Number- 77001392 NRIS, National Park Service, 1977.
http://pdfhost.focus.nps.gov/docs/NRHP/Text/77001392.pdf
http://pdfhost.focus.nps.gov/docs/NRHP/images/77001392.pdf
Photograph/Information retrieved on April 20th, 2011 from website http://www.google.com
Photograph/Information retrieved on April 20th, 2011 from website http://www.bing.com.
Photograph/Information retrieved on April 20th, 2011 from website http://www.zillow.com.
Sexton, James, PhD; Survey Narrative of the Connecticut Barn, Connecticut Trust for Historic Preservation, Hamden, CT, 2005, http://www.connecticutbarns.org/history
Visser, Thomas D.,Field Guide to New England Barns and Farm Buildings, University Press of New England, 1997.
Monroe Center Local Historic District - 1969.